DZL生物质蒸汽锅炉
本系列锅炉是我公司主导产品,目前已全部更新换代,该系列锅炉目前在单锅筒系列产品中具有国内先进水平。在我国有锅炉泰斗之称的、同时也是该系列产品的奠基人之一的李之光教授,给予我公司全方位的科研支持。
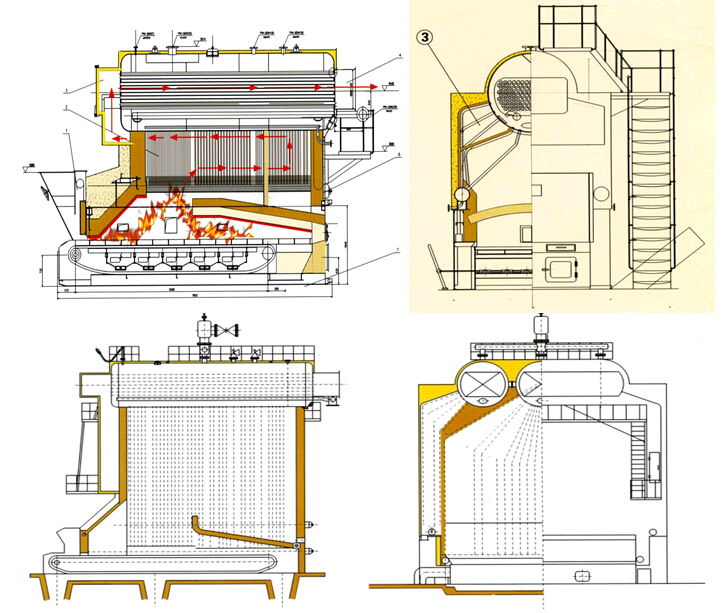
产品特点:
1.锅炉本体采用新型拱形管板,改善了管板的应力水平,大大提高了锅炉使用寿命。
2.锅炉循环方式为自然循环、采用回水引射装置,水循环安全可靠。
3.烟管采用高效传热原件即螺纹烟管、大大提高了传热效率。
4.采用八字烟道布置、使烟气流程更加合理,不仅提高了传热效率、同时也保证了锅筒下不不直接受火焰辐射、延长了锅炉使用寿命。
5.由于炉膛后部设置灰尘粗分离转向室,而且炉膛容积大,则可确保锅炉原始排尘浓度低于标准允许值、减轻了除尘设备的负担,锅炉机组综合排放达到国家标准。
DZL系列蒸汽锅炉2-6t/h

DZL系列蒸汽锅炉2-6t/h标配辅机列表

DZL系列蒸汽锅炉10-20t/h

DZL系列蒸汽锅炉10-20t/h标配辅机列表

百瑞彩票Copyright © 2002-2023 百瑞彩票 版权所有
XML地图